
![]()
簡介
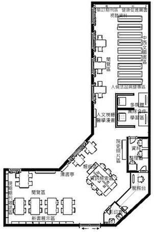
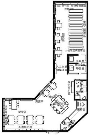
本館址位於D棟6樓。民國99年明訂為「奇美醫療財團法人柳營奇美醫院」。於110年進行空間重劃,佔地由388.8平方公尺調整為324平方公尺(約98.01坪),提供8台公用電腦可上網查詢資料,閱覽座位共40席,館內可WiFi無線網路。
奇美醫院醫學圖書館創立於民國七十三年八月,原名「財團法人逢甲醫院」圖書館,民國八十一年十二月院名改為 「財團法人奇美醫院」。民國九十三年七月柳營奇美醫院成立,醫學圖書館亦一併設立。民國一百年九月併購原「佳里醫療社團法人佳里醫院」圖書室,院名更為「奇美醫療財團法人佳里奇美醫院」。
圖書館各館資源整合,主要服務對象為全院區之醫師、護理、醫事與行政人員,提供臨床、教學、研究必需之醫學相關圖書與期刊文獻資源,以及閱覽服務、各館借/還書服務、新書通報、資料庫檢索講習、圖書館利用教育、參考諮詢、館際合作、專題資訊選粹(SDI)…等服務,結合資訊科技進步與數位化資源脈動,呈現一個生活化、現代化、數位化、雲端化的多元圖書館。
醫學圖書館直屬院長室,教學副院長管轄,設館長一人,圖書館委員會協助圖書館之預算、採購、服務及管理等相關任務,關於圖書館委員會組織章程及委員名單另行定訂。
柳營會議記錄

|
開館日 |
開館時間 |
閉館時間 |
|
週一 ∼ 週五 |
08:00 |
20:00 |
|
週六 |
08:00 |
12:00 |
|
週日 |
不開館 |
不開館 |
|
半日門診國定假日 |
不開館 |
不開館 |
連絡方式
地
址: (736) 台南市柳營太康里太康201號
服務電話:(06)
6226999 分機72070(流通櫃台);分機77673(辦公室)
E-Mail
:clh4100@mail.chimei.org.tw
本館配置有參考流通服務台、中西文圖書區、現期期刊區、裝訂期刊區、視聽資料區、資訊檢索區、影印室、院史照片區。

圖書館管理規則(修訂日期:民112.4/111.4/110.4/ 105.12/ 103.4/
95.11)
一、總則
二、圖書館書刊閱覽規則
三、圖書館進館使用管理規則
四、圖書館圖書資料介購規則
五、圖書館醫學期刊及電子資源訂閱規則
六、圖書館院外人員進館使用管理規則
七、期刊最新目次暨專題資訊選粹服務規則
八、圖書館館際合作服務規則
九、圖書館視聽設備使用管理規則
十、圖書館電子資源使用管理規則
十一、圖書館寄物櫃使用管理規則
十二、圖書館書刊資料受轉贈管理規則
十三、醫學生使用須知(有人事號者,限院內下載)
十四、各科職類學生使用須知
及其 院內外連線電子資源申請表(限google瀏覽器開啟)
一、館藏資料
館藏圖書
|
項目/冊.件 |
中文 |
西文 |
合計 |
|
圖書 |
8,373 |
2,774 |
11,147 |
|
視聽資料 |
886 |
399 |
1,285 |
館藏期刊
|
項目 |
中文 |
西文 |
合計 |
|
紙本期刊 |
期刊31種 健康人文雜誌 42種 |
1 |
74種 |
|
電子期刊 |
3,012種 |
11,553種 |
14,565種 |
各項館藏量統計
|
各項資源 \ 年度 |
年度 |
|||||||
|
各類型資料館藏量統計 |
||||||||
|
圖書 |
2018年請購圖書 |
|||||||
|
2019年請購圖書 |
||||||||
|
2020年請購圖書 |
||||||||
|
2021年請購圖書 |
||||||||
|
2022年請購圖書 |
|
|||||||
|
2023.1-6月請購圖書 |
|
|||||||
|
期刊 |
單位推薦請購清單 |
|||||||
|
年度請購清單 |
||||||||
二、各項服務統計
|
項目 |
年度 |
||
|
進館使用人次 |
|||
|
圖書借閱流通 |
圖書借還冊次 |
||
|
身分別借書/借閱量 |
|||
|
單位別借書/借閱量 |
|||
|
期刊雜誌借閱 |
書刊借還冊數 |
||
|
身份別借閱量 |
|||
|
單位別借閱量 |
|||
|
館際合作 |
對外及外來件數 |
||
|
身份別申請量 |
|||
|
單位別申請量 |
|||
|
推廣利用教育 |
資源利用講習講座參訪 |
||
|
電 |
ERMG網站使用量 |
||
|
使用次數統計 |
|||
|
身分別使用次數 |
|||
|
單位別使用次數 |
|||
|
資料庫使用量 |
|||
|
期刊使用量排行榜 |
|||
|
電子書使用量排行榜 |
|||
奇美醫院圖書館 Chi Mei Medical Center. Medical Library.
©2014 Copyright 院內首頁. 院外首頁
Copyright©Chi Mei Hospital, Liouying. Medical Library. All Rights
Reserved.
電話:(06)6226999轉72070|E-mail: clh4100@mail.chimei.org.tw